氣動三通球閥
- 閥門型號:Q644F,Q645F,Q614F,Q615F
- 通徑規格:法蘭DN15~DN300,螺紋DN15~DN50
- 結構形式:三通L型,三通T型
- 閥體材質:碳鋼WCB、不銹鋼304、316、316L等
- 公稱壓力:PN10、PN16、PN25、PN40、PN64
- 適用溫度:-40℃~+450℃
- 應用范圍:氣體、水、蒸汽、液體、油品、腐蝕性介質等
- 產品特點:一閥多用,分L型和T型,達到換向、分配、合流、分流
氣動三通球閥簡介:
氣動三通球閥是用于管道中介質換向、合流及分流的作用,主要由T型或L型三通球閥與氣動執行器連接組成,按連接方式不同可分為法蘭及內螺紋。氣動三通L型球閥是對兩條相互垂直的通道進行介質流向的切換或截斷,起到分配作用,而T型球閥不僅可對介質流向進行切換,還可以使三個通道互相連通或關閉其中任意一條通道,起到分流、合流作用。可根據工況需要,在氣動三通球閥執行器上加裝閥門定位器及其它相關配件,即可控制球閥球芯的運轉,達到對管路中介質的自動化控制。
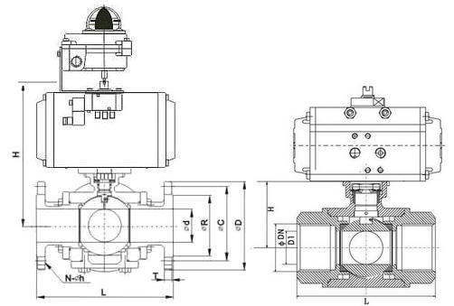
氣動法蘭三通球閥 氣動內螺紋三通球閥
氣動三通球閥優點:1、可選用不同連接形式,分為氣動法蘭三通球閥和氣動螺紋三通球閥,滿足不同使用工況。
2、密封效果極佳,采用軟密封四氟乙烯彈性變形可達到無泄漏密封。
3、一閥多用:可制成L型通口,也可制成T型通口,達到分配、合流、分流等功能。
4、氣動三通球閥安裝方便,可用任一通口作為介質的流通入口,并且無泄漏。
5、廣泛適用于環保、油品、冶金、蒸汽、能源、造紙、食品等管路系統中對介質進行流向改變或達到對介質分流或混合。
氣動三通球閥標準規范:
1.設計和制造:GB/T12237-1989;APl608。 2.檢驗和試驗:GB/T13927-1992;APl598。 3.法蘭連接:JB/T79]一2-1994;ASME/ANSIB165。 4.結構長度:JD-2002回訊器:也叫限位開關,遠程反饋開關信號(防爆) 電磁閥:雙作用選二位五通、單作用選二位三通(防爆) 三聯件:可對氣源穩壓、過濾、氣缸加潤滑油 閥門定位器:輸入4~20mA信號,實現閥門調節功能YT-1000R | 
氣動法蘭三通球閥結構圖 氣動內螺紋三通球閥結構圖 |
氣動三通球閥技術參數:| 公稱通徑 | DN10~DN300(mm) (螺紋1/2"~2") |
| 公稱壓力 | PN1.0、1.6、2.5、4.0、6.4MPa |
| 驅動形式 | 壓縮空氣4-7bar |
| 連接方式 | 法蘭、內螺紋 |
| 結構形式 | L型、T型 |
| 動作范圍 | 0-90度(其他定制) |
| 使用溫度 | -40℃~+450℃(可選) |
| 閥門材質 | 碳鋼WCB、不銹鋼304、316、316L等 |
| 控制方式 | 開關型,調節型(定位器4-20mA) |
| 作用形式 | 單作用彈簧復位(常開型,常閉型),雙作用(氣開氣關) |
氣動三通球閥流向原理說明:
氣動三通球閥根據結構形式及流通方向不同分為L型和T型,介質流通方向圖如下。
T型三通球閥流向圖 L型三通球閥流向圖
L型三通球閥只能連接或截斷兩條相互垂直正交的管道,不能同時保持第三條管道的相互連通,只起到分配作用。
T型三通球閥能使三條正交的管道相互聯通或切斷任意第三條通道,達到兩進一出或一進兩出的的功能,起到分流、合流作用。
氣動三通球閥性能參數:| 公稱通徑DN(mm) | DN15-300 |
| 公稱壓力 | PN(MPa) | 1.0 | 1.6 | 2.5 | 4.0 | 6.4 |
| 試驗壓力 | 強度試驗 | 1.5 | 2.4 | 3.8 | 6.0 | 9.60 |
| 密封試驗 | 1.1 | 1.8 | 2.8 | 4.4 | 7.04 |
| 低壓氣密試驗 | 0.4~0.7 |
| 適用介質 | 氣體、水、油品、蒸汽或腐蝕性介質(常溫,低溫,高溫) |